近年来,物流业信息化水平不断提高,越来越多的自动化立体仓库投入使用,自动化立体仓库行业有望获得新的发展机遇,前景值得期待。
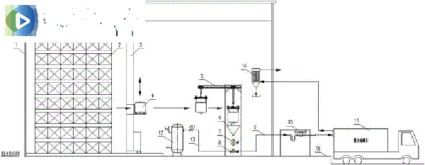
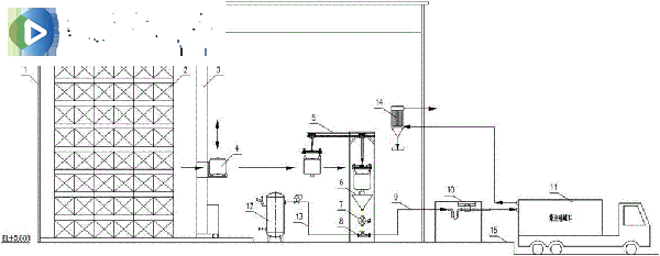
自动化立体仓库是一种高水平的立体仓库,进出仓库的操作通常由自动装卸设备完成。由于采用了自动化技术,可以提高物流效率,节省人力成本,这是许多物流企业所青睐的。为什么呢?主要原因如下:
一、货架储存和空间资源利用。对于物流企业来说,仓库是基础,但如何更好地利用空间对企业有着重要的意义。因此,空间规划是非常重要的。
二、自动仓储,提高工作效率,降低误差率。自动化立体仓库采用自动化技术,既提高了工作效率,又减少了货物储存中的误差和货物的破损率。

三、计算机控制,具有集约化作用。自动化设备生产后,物流企业将发挥集约化效应,提高物流效率,减少城市交通拥堵,减少碳排放。
四、信息集成,便于生产和操作。信息集成技术是自动化立体仓库的基础,为自动化技术的实现提供了系统的数据管理,并集成了自动化立体仓库的信息管理系统和企业信息系统图书馆,方便了物流企业的生产和操作。
基于上述特点,自动化立体仓库越来越受到越来越多的企业的重视,它不仅在物流企业中得到应用,而且随着自动化仓库的普及,相信它将成为未来现代物流系统中的一个重要节点。
然而,我国自动化立体仓库的发展空间还很大,我国的自动化技术还处于初级发展阶段,未来还有很长的路要走。然而,我国的自动化技术正朝着智能化、虚拟化、集成化的方向发展,这为自动化立体仓库的发展奠定了技术基础。随着自动化技术的日益成熟,自动化立体仓库有望进入一个新的发展阶段。